w/ prague
︎
w/ dominik
bon, viktorie bon
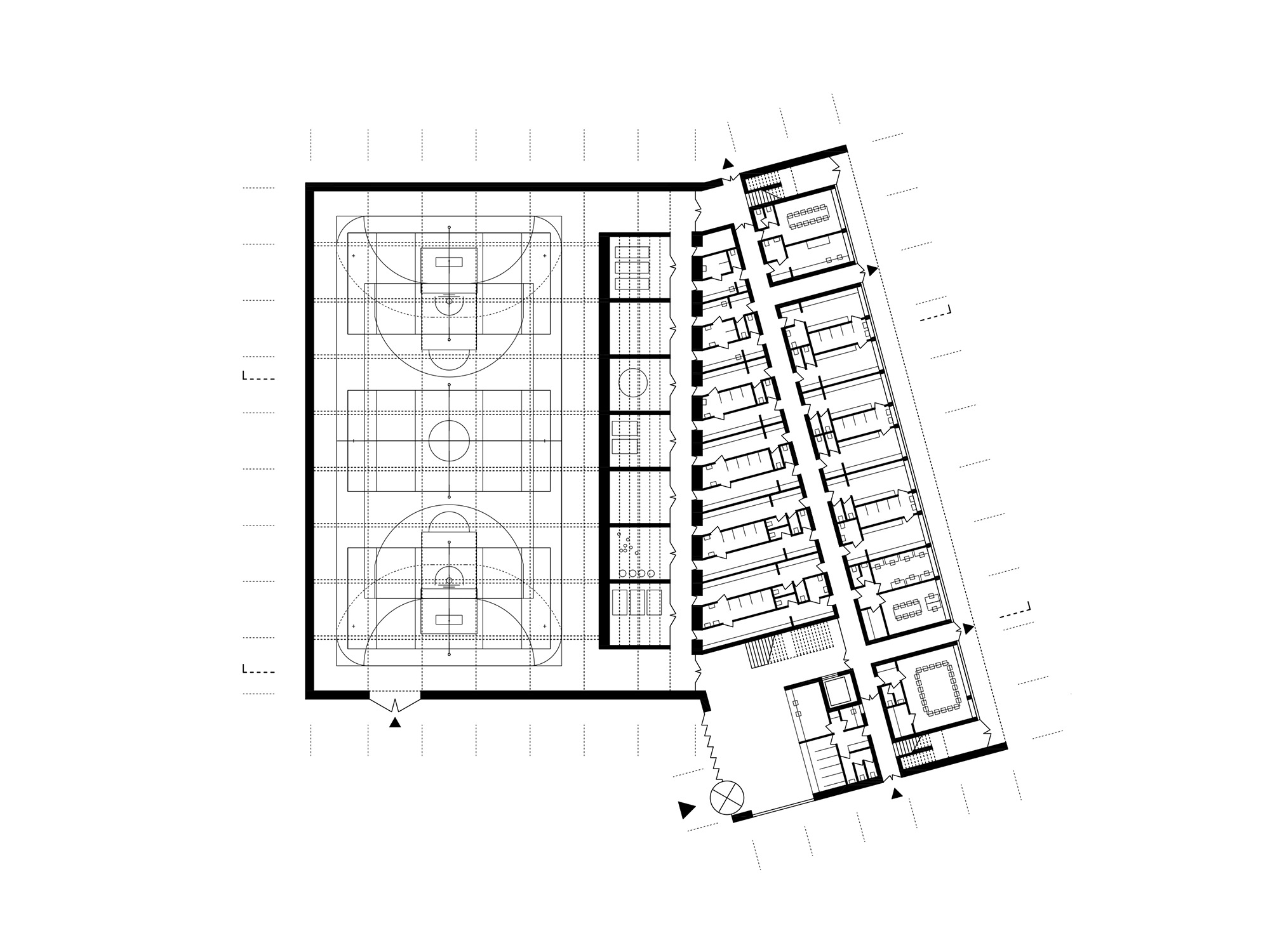
sports hall nový jičín, open competition