w/ prague
︎
w/
viktorie bon, ludmila haluzíková, tomáš gelien
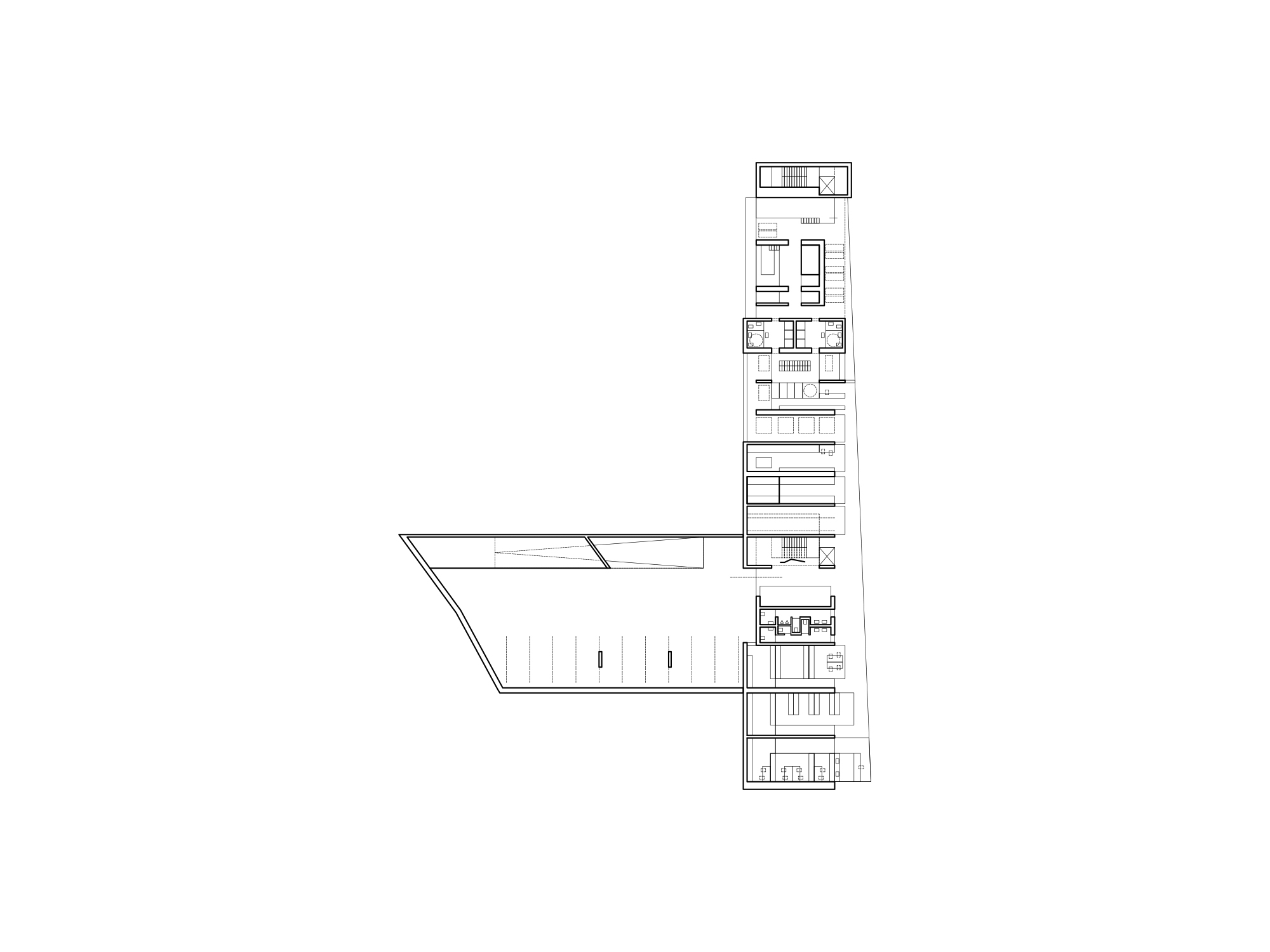
kremnica, open competition