w/ prague
︎
w/
jasmín al-hussein, tomáš gelien, tomáš korch, petr matiassovits
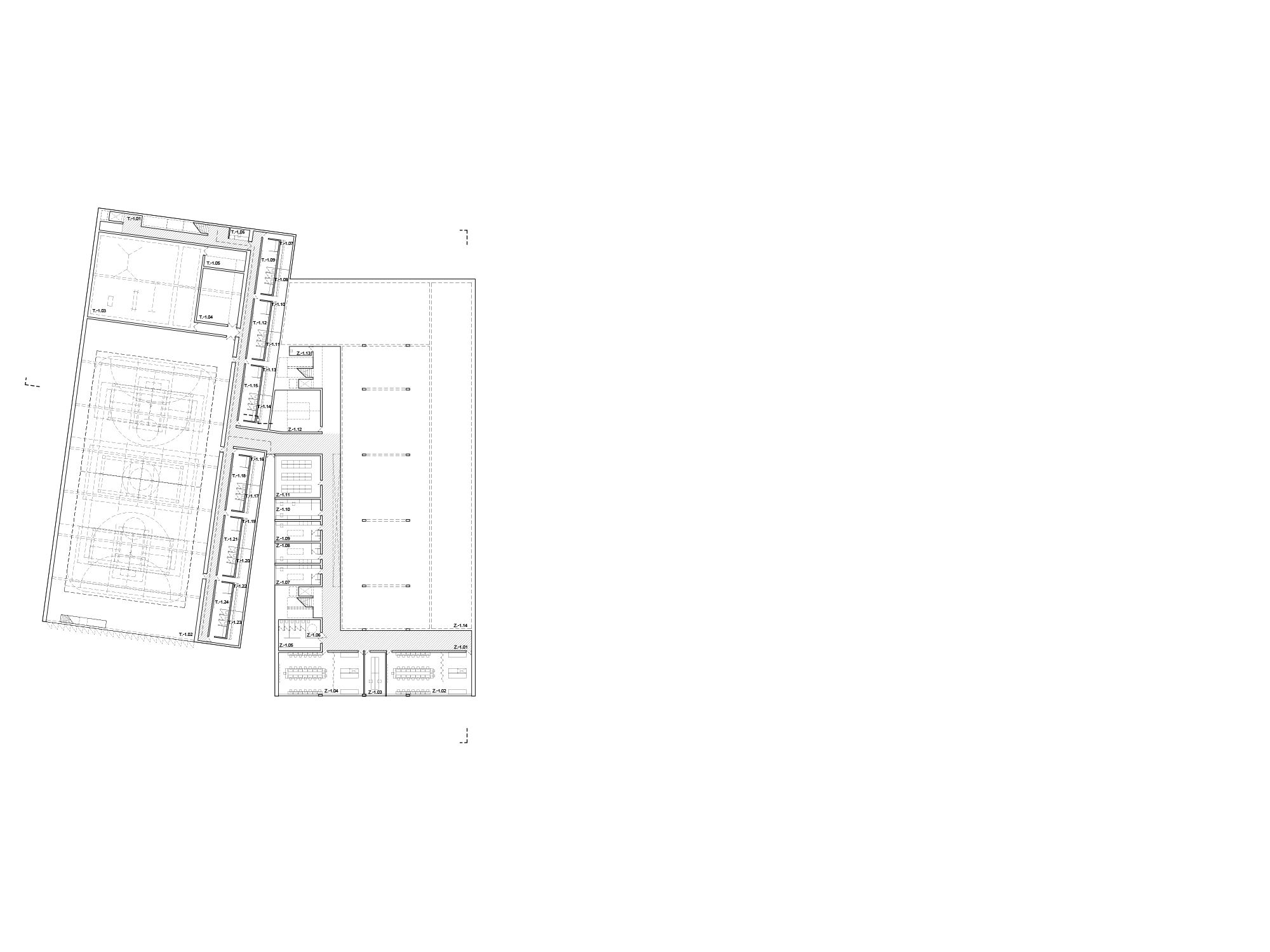
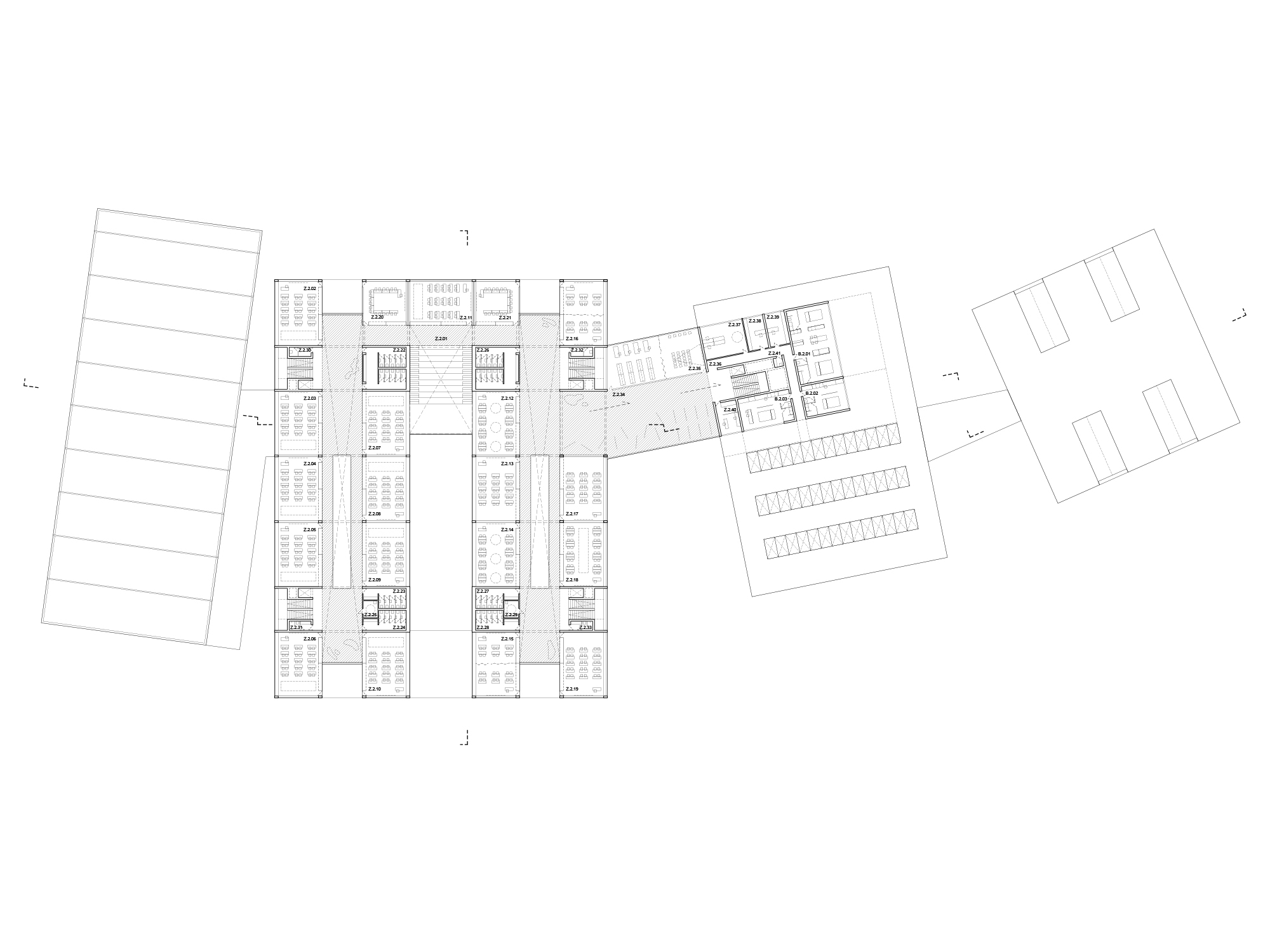
school jílové, open competition